Добро пожаловать на http://vipplan.ru

Випплан Канаш - это тысячи проектов домов в нашем каталоге!

Вы всегда сможете найти для себя проект дома вашей мечты! Даже если этого не случилось, мы готовы в любую минуту предложить проект индивидуального дома.

Забыли пароль?
Вы еще не регистрировались?

Перейдите по ссылке ниже на страницу регистрации.

Регистрация...

Внимание!!!

В проектную документацию могут быть внесены изменения любой сложности, в соответствии в Вашими пожеланиями!

Полезные статьи

Проект дома

Строительство дома начинается с подготовительного этапа, основной частью которого является проект. Разработка дизайнерского проекта сопровождается оформлением документов после выбора участка....

Выбор проекта дома в Канаше. Типовой или индивидуальный?

Строительство дома начинается с выбора проекта. От него будет зависит удобство, комфорт и функциональность Вашего будущего дома. Какой проект выбрать? В каталоге проектов домов VIPplan Канаш предоставлен огромный выбор проектов на любой вкус и кошелек. В итоге выбор сводится к покупке типового проекта дома или заказа индивидуального проекта. Для упращения задачи, расскажем о каждом варианте по отдельности...

Проекты домов и коттеджей > Каталог проектов домов > Одноэтажный дом с двумя санузлами и вторым светом. Vg3877

Одноэтажный дом с двумя санузлами и вторым светом. Vg3877

Одноэтажный дом с двумя санузлами и вторым светом.
Зарегистрируйтесь

Проект № Vg3877


Техническое описание
Общая площадь: 123.53 м2
Жилая площадь: 72.86 м2
Высота здания: 6.42 м
Размеры дома: 11.18м×17.92м
Кол-во комнат: 4
Цокольный этаж: нет
Гараж: нет
Мансарда: нет

Kонструкция
Фундамент: ленточный
Перекрытия: монолитные, деревянные балки

Архитектурный раздел
Конструктивный раздел
АР+КР - 48 000 (Со скидкой 20%)
Одноэтажный дом с двумя санузлами и вторым светом, с габаритными размерами здания 11,18х17,92 м. Фундамент - монолитная ж/б стена в грунте (щелевой). Наружные стены - полнотелый кирпич с утеплителем и отделкой облицовочным кирпичом. Внутренние стены - полнотелый кирпич. Перегородки - пустотелый кирпич. Пол этажа - пол по монолитной плите Чердачное перекрытие - деревянные балки. Крыша - многоскатная. Кровля - металлочерепица. Окна - металлопластиковые.
Генплан застройки участка / Паспорт проекта 7000 руб / 10000 руб
Инженерный раздел (полный) 62000 руб
Смета на строительство 31000 руб
Теплотехнический расчет материалов стен Бесплатно
Стоимость проекта со незначительнми изменениями 56900 руб
Стоимость проекта со средними изменениями* 66200 руб
Стоимость проекта со значительными изменениями** 68700 руб

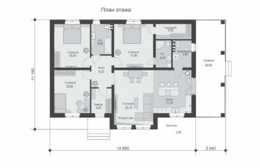
План первого этажа


Тамбур - 5,26 м2
Холл - 6,72 м2
Спальня - 16,06 м2
Спальня - 16,24 м2
С/у - 6,36 м2
Спальня - 17,80 м2
С/у — 4,45 м2
Гардероб - 5,66 м2
Бойлерная 5,06 м2
Кухня - 17,16 м2
Гостиная - 22,76 м2
Одноэтажный дом с двумя санузлами и вторым светом. Одноэтажный дом с двумя санузлами и вторым светом. Одноэтажный дом с двумя санузлами и вторым светом. Одноэтажный дом с двумя санузлами и вторым светом.

Модификации проектов

Внесение изменений и привязка к участку строительства

В любой из проектов от компании VIPplan - Канаш по вашему желанию могут быть внесены изменения в материалы стен, материалы наружной отделки дома, а также будет произведена адаптация проекта под конкретный регион строительства (с учетом грунтов региона, геологических особенностей вашего участка и местных климатических условий) - БЕСПЛАТНО !!! (кроме проектов со скидкой и проектов наших партнеров).

Любой из проектов, размещенных на сайте kanash.vipplan.ru мы можем выполнить из требуемых вам строительных материалов: ячеистый бетон (газобетон, пеноблок), керамоблок, кирпич, шлакоблок, бетонный блок, дерево (брус, клееный брус), каркасная технология (деревянный каркас, металлокаркас (ЛСТК)).

Фасад дома и его наружную отделку так же возможно выполнить с применением различных облицовочных материалов: структурной штукатурки, (с утеплителем и без), сайдингом (пластиковый или металлосайдинг), фиброплитами, кирпича.

 
6 Избранные
проекты

Доставка проектов по России: Москва (Московская область), Санкт-Петербург (Ленинградская область), Краснодар, Ростов-на-Дону, Ставрополь, Сочи, Волгоград, Новосибирск, Белгород, Брянск, Воронеж, Саратов, Хабаровск, Астрахань, Нальчик, Владикавказ, Екатеринбург, Тюмень, Самара, Нижний Новгород, Казань, Пермь, Уфа, Челябинск, Красноярск, Ханты-Мансийск, Иркутск, Курган, Оренбург, Омск, Томск, Барнаул, Новокузнецк, Кемерово, Абакан, Чита, Якутск, Южно-Сахалинск, Петропавловск-Камчатский и страны ближнего зарубежья: Белоруссия, Украина, Казахстан