Добро пожаловать на http://vipplan.ru

Випплан Канаш - это тысячи проектов домов в нашем каталоге!

Вы всегда сможете найти для себя проект дома вашей мечты! Даже если этого не случилось, мы готовы в любую минуту предложить проект индивидуального дома.

Забыли пароль?
Вы еще не регистрировались?

Перейдите по ссылке ниже на страницу регистрации.

Регистрация...

Внимание!!!

В проектную документацию могут быть внесены изменения любой сложности, в соответствии в Вашими пожеланиями!

Полезные статьи

Купить готовый проект дома или заказать индивидуальный?

Перед началом строительства дома возникает необходимость в проекте дома и тут встает вопрос: Купить готовый проект дома или заказать индивидуальный на заказ? Каждый из вариантов по своему хорош и имеет как свои плюсы так и минусы...

Советы по проектированию дома

Представляем Вашему вниманию несколько советов по проектированию дома. Все что касается выбора участка, размещению дома на участке, подбора проекта на строительство дома, советы по выбору технологии строительства и материалов и т.д....

Проекты домов и коттеджей > Каталог проектов домов > Проект одноэтажного дома с мансардой Vg1510

Проект одноэтажного дома с мансардой Vg1510

Проект одноэтажного дома с мансардой
Зарегистрируйтесь

Проект № Vg1510


Техническое описание
Общая площадь: 92.74 м2
Жилая площадь: 59.54 м2
Высота здания: 8.2 м
Размеры дома: 8.68м×8.84м
Кол-во комнат: 4
Цокольный этаж: нет
Гараж: нет
Мансарда: есть

Kонструкция
Фундамент: монолитная ж/б плита
Перекрытия: деревянные балки
Материал стен: Опалубка

Архитектурный раздел
Конструктивный раздел
АР+КР - 44 000 (Со скидкой 20%)
Проект индивидуального одноэтажного жилого дома с мансардой с размерами здания 8,68 x 8,84 м. Наружная отделка здания – фасадная штукатурка. Фундамент – монолитная ж/б плита (под всей площадью дома). Наружные стены – по технологии несъемной опалубки Velox с отделкой фасадной штукатуркой, деревянными панелями и клинкерной плиткой. Внутренние стены – по технологии несъемной опалубки Velox. Перегородки – из щепоцементных плит Velox. Пол 1 этажа – пол по фундаментной плите. Межэтажное перекрытие – деревянные балки перекрытия. Крыша – двускатная. Кровля – металлочерепица. Окна – металлопластиковые. Лестница – монолитная ж/б.
Генплан застройки участка / Паспорт проекта 7000 руб / 10000 руб
Инженерный раздел (полный) 50000 руб
Смета на строительство 25000 руб
Теплотехнический расчет материалов стен Бесплатно
Стоимость проекта со незначительнми изменениями 52650 руб
Стоимость проекта со средними изменениями* 59700 руб
Стоимость проекта со значительными изменениями** 61500 руб

План первого этажа


Тамбур — 2,20 м2
Холл - 5,10 м2
С/у - 5,18 м2
Гостиная - 25,22 м2
Кухня - 8,25 м2

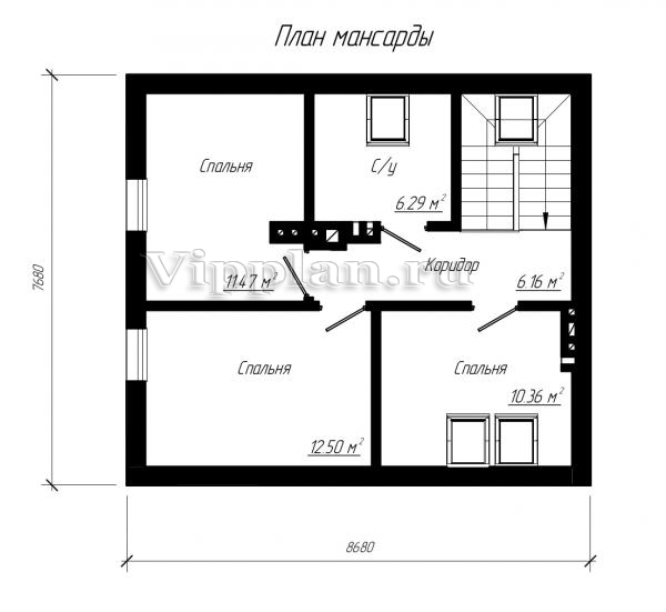
План мансардного этажа


Коридор — 6,16
С/у — 6,29
Спальня — 11,47
Спальня — 12,50
Спальня — 10,36
Проект одноэтажного дома с мансардой Проект одноэтажного дома с мансардой Проект одноэтажного дома с мансардой Проект одноэтажного дома с мансардой
Внесение изменений и привязка к участку строительства

В любой из проектов от компании VIPplan - Канаш по вашему желанию могут быть внесены изменения в материалы стен, материалы наружной отделки дома, а также будет произведена адаптация проекта под конкретный регион строительства (с учетом грунтов региона, геологических особенностей вашего участка и местных климатических условий) - БЕСПЛАТНО !!! (кроме проектов со скидкой и проектов наших партнеров).

Любой из проектов, размещенных на сайте kanash.vipplan.ru мы можем выполнить из требуемых вам строительных материалов: ячеистый бетон (газобетон, пеноблок), керамоблок, кирпич, шлакоблок, бетонный блок, дерево (брус, клееный брус), каркасная технология (деревянный каркас, металлокаркас (ЛСТК)).

Фасад дома и его наружную отделку так же возможно выполнить с применением различных облицовочных материалов: структурной штукатурки, (с утеплителем и без), сайдингом (пластиковый или металлосайдинг), фиброплитами, кирпича.

 
6 Избранные
проекты

Доставка проектов по России: Москва (Московская область), Санкт-Петербург (Ленинградская область), Краснодар, Ростов-на-Дону, Ставрополь, Сочи, Волгоград, Новосибирск, Белгород, Брянск, Воронеж, Саратов, Хабаровск, Астрахань, Нальчик, Владикавказ, Екатеринбург, Тюмень, Самара, Нижний Новгород, Казань, Пермь, Уфа, Челябинск, Красноярск, Ханты-Мансийск, Иркутск, Курган, Оренбург, Омск, Томск, Барнаул, Новокузнецк, Кемерово, Абакан, Чита, Якутск, Южно-Сахалинск, Петропавловск-Камчатский и страны ближнего зарубежья: Белоруссия, Украина, Казахстан